Güemes 3700 | SFP0023

FICHA

  • Producto Departamento
  • Operación Alquiler
  • Barrio Palermo
  • Baños 2
  • Estado Excelente
  • Orientación Este
  • Disposición Frente
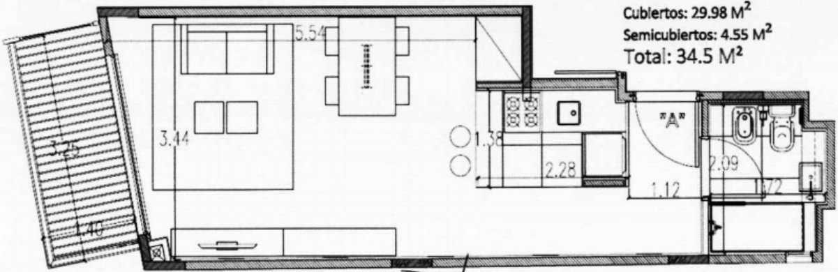
  • Sup. Propia 35,00 m2
  • Sup. Cubierta 30,00 m2
  • Sup. Balcón 5,00 m2
  • Movilidad Reducida
  • Expensas 110000

U$S 500

ALQUILER

Güemes 3700

Palermo

> ALQUILER MONOAMBIENTE DIVISIBLE EN PALERMO < Departamento monoambiente divisible en Güemes y Julián Álvarez (a dos cuadras de Av. Santa Fe, numerosas líneas de colectivo y subte línea D). DESARROLLO DE LA UNIDAD: • Ambiente dividido por cocina • Toilette de recepción • Baño completo • Balcón a la calle #La unidad se entrega con aire acondicionado frío calor y luces. AMENITIES: • Parrilla REQUISITOS: • Ingresos demostrables. • Seguro de caución o garantía propietaria CABA. * Las medidas provistas son aproximadas - Los gastos de expensas expresados refieren a la última información recabada y deberán confirmarse - Fotografías no vinculantes ni contractuales. SOL FLORIANI PROPIEDADES - CUCICBA M.N. 3793


DETALLE DE LA PROPIEDAD

Balcón: Si
Expensas: 110000
Parrilla: Si

ADICIONALES

A Estrenar
Apto Profesional
Balcón
Luz

*Las descripciones arquitectónicas, valores de expensas, impuestos o servicios, fotos y medidas de las propiedades son aproximados. Los datos fueron proporcionados por el propietario y pueden no estar actualizados a la hora de la visualización de este aviso por lo cual pueden arrojar inexactitudes o discordancias con las que surjan de los las facturas, títulos o planos legales del inmueble. Se pondrá a disposición del interesado la documentación necesaria a fin de realizar las verificaciones respectivas previamente a la realización de cualquier operación, requiriendo por sí o sus profesionales la documentación que corresponda.
*Inciso 8 del artículo 10 de la Ley 2340 (texto consolidado según Ley N° 5666). Para los casos de alquiler de vivienda, el monto máximo de comisión que se le puede requerir a los propietarios será el equivalente al cuatro con quince centésimos por ciento (4,15%) del valor total del respectivo contrato. Se encuentra prohibido cobrar a los inquilinos que sean personas físicas comisiones inmobiliarias y gastos de gestoría de informes", segun Art.4 de la Ley 5.859 de C.A.B.A.

PROPIEDADES SIMILARES

DEPARTAMENTO

Güemes 3700

Palermo, Capital Federal, Buenos Aires

ALQUILER

U$S 500

33,00 m2 2 Baños

CONTACTO





Solicitá tu tasación !

Nuestro compromiso es acompañarte y brindarte todo lo necesario para lograr tu objetivo.

Sol Floriani, Matrícula CUCICBA: 3793 - Colegio Único de Corredores Inmobiliarios de la Ciudad de Buenos Aires.

Desarrollado por TecnoGestión Sistemas